产品标准及规范
1、标准: GB1094、GB6450、 GB/T10228、 符合DIN42523、IEC726
2、容量范围: 30-16000kVA
3、电压等级: 10kV、 35kV
4、调压方式:无励磁调压或有载调压
5、分接范围:士百分之5、+百分之2x2 5、土百分之4x2 5
6、频率: 50Hz或60Hz
7、相数:三相或单相
8、联结组标号: Yyn0, Dyn11或其它
9、短路阻抗:标准阻抗(见性能参数)
10、海拔小于1000M,环境温度低干400C,超过上述使用条件时,应按照标准做相应的调整。
11、线圈温升: 100K
1 2、制冷方式:自冷(AN)或风冷(AF)
13、外壳防护等级: IP00, IP20, IP23
14、绝缘等级: F级
15、绝缘水平:
(1)10KV级产品工频耐压35KV,雷电冲击电压75KV
(2)20KV级产品工频耐压50KV,雷电中击电压125KV
(3)35KV级产品工频耐压70KV,雷电中击电压170KV
产品特点
1、高压绕组采用漆包铜线,低压绕组用铜箔绕制。高压绕组用玻璃纤维毡填充.在真空状态’下用不加填料的进口环氧树脂浇注,固化后形成坚固的整体,机械强度高,局部放电少,可靠性高。
2、阻燃、防爆、不污染环境、环保型、可安装在负荷基地。
3、线圈不吸潮、铁心、夹件经过特殊工艺处理可在百分之100相对湿度和其它恶劣环境中运行。间断运行无须去潮处理。
4、抗短路、雷电冲击水平高,过载能力强。
5、线圈内外侧树脂绝缘层薄,散热性能好。对于任何防护等级的变压器都可配置风冷系统(AF)。
6、损耗低、节电效果高。运行经济,可免维护。
7、体积小、重量轻、占地空间小、安装方便。
8、作为干式变压器的新-代产品,SC(B)型干式变压器适用于以下场所的供电;高层建筑、剧院、工矿企业、海上石油钻井平台、船舶、地铁、车站、机场、发电厂、住宅小区及高楼大厦等;
型号含义

35KV级干式浇注变压器参数

型号含义

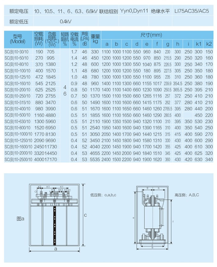
SC(B)10系列 10kV级30- 2500kVA干式浇注变压器参数

型号含义

SC(B)10系列10kV级30- 2500kVA干式浇注变压器参数
